






Dpe
Bien non soumis au DPE
PARIS
Location Professionnel
24 000 € CC
Loyer : 24000 € Charges Comprises par mois
Dépôt : 4 000 €
Honoraires à charges locataire : 6 000 € TTC
Dépôt : 4 000 €
Honoraires à charges locataire : 6 000 € TTC
Description
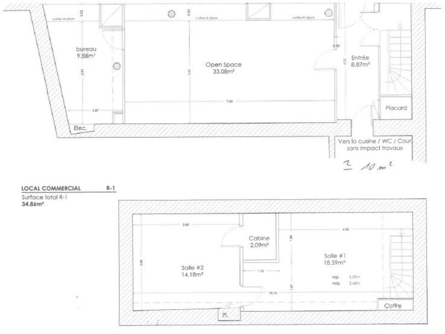
Local commercial / Bureaux en boutique avec 12m de vitrine + 2 entrées + rideaux métallique.Sur 2 niveaux:
RDC : 65 m² au rez-de-chaussée avec bureaux séparés, cuisine aménagée, wc.
Sous sol : salle de 35 m² accessible par escalier intérieur.
Bail neuf toute activité sauf alimentation, restauration et coiffure.